El concejal de Urbanismo e Infraestructuras, Julián Garijo, ha anunciado que “la promoción de 27 viviendas con protección pública para alquiler que se está realizando en la zona del Puente de Madera se verá ampliada con la construcción de otras 10 viviendas más en el mismo régimen, ocupando el solar anexo a las viviendas en ejecución. Esta ampliación se llevará a cabo generando un nuevo portal integrado en la edificación existente para formar un bloque de 37 viviendas”.

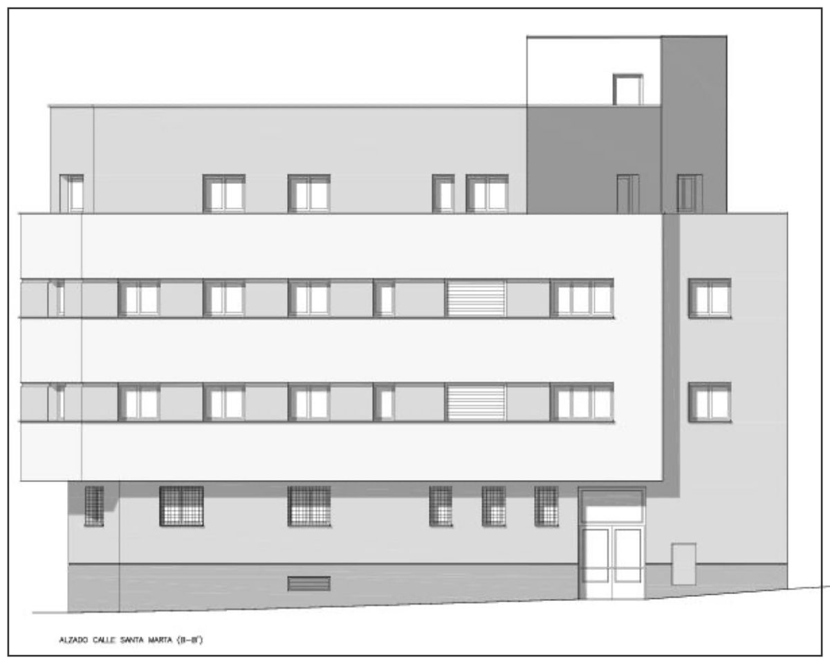
Garijo ha comentado que “el Consejo de Administración de Urvial ha aprobado hoy el proyecto básico y de ejecución para ampliar esta promoción con 10 nuevas viviendas adicionales, y los pliegos para iniciar la licitación de las obras. El solar en el que se construirán, situado en la calle Santa Marta, constituye el resto de la manzana donde se están construyendo las otras 27 viviendas, y dispone de una superficie de 240 m2, y una superficie total edificable de 959 m2”.
Los detalles de estas viviendas en Albacete
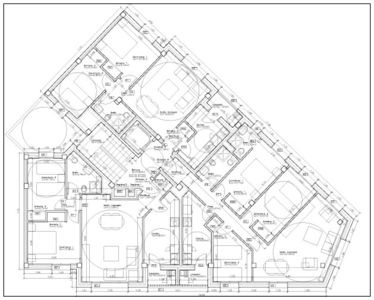
El edil ha descrito que “las obras consistirán en 10 viviendas distribuidas en 4 plantas (baja más tres), siendo 4 de ellas de 3 dormitorios y las otras 6 de 2 dormitorios, con unas superficies que oscilan entre los 67 m2 y los 104 m2 construidos. Se puede destacar algún aspecto constructivo, como la instalación de un grupo integral de calefacción y ACS mediante bombas de calor con aerotermia y depósitos acumuladores, todo ello ubicado en los locales técnicos situados en planta de cubierta, así como la disposición de ventanas de aluminio lacado con rotura de puente térmico y vidrio doble (uno de ellos de baja emisividad), o carpintería interior de madera barnizada”.

Garijo ha mencionado que “en el proceso de licitación de las obras que ahora se inicia, se han estimado unas condiciones de partida de un plazo de ejecución de 16 meses y un presupuesto de 885.000 euros”.

Contribuir a la mejora de la oferta de viviendas en Albacete
El concejal de Urbanismo ha explicado que “al finalizar esta promoción junto con la ampliación aprobada en el día de hoy, se dispondrá de otras 37 viviendas de protección pública en este caso para alquiler, que se sumarán a las 88 adjudicadas en su totalidad en régimen de venta de las que se va a realizar la entrega de llaves en unas semanas, y a otras 15 en régimen de alquiler de las que se está finalizando el proyecto básico”.
Garijo ha finalizado asegurando que “tenemos la intención de continuar trabajando, en la medida de nuestras posibilidades y competencias, para contribuir a la mejora de la oferta de viviendas en Albacete y facilitar así el acceso de todos a una vivienda digna, con promociones directas como es este caso, aprobación de nuevos ámbitos urbanísticos para generar más suelo residencial disponible y otras actuaciones encaminadas a abaratar los precios de las vivienda y facilitar el acceso a ellas por parte de los albaceteños”.


